Porzione di bifamiliare in vendita

Vallefoglia, Viale Roma - Montecchio
€ 135.000
4 locali 4 locali
157 Mq 157 Mq
1 bagno 1 bagno

Porzione di bifamiliare in vendita

Vallefoglia, Viale Roma - Montecchio

Descrizione annuncio

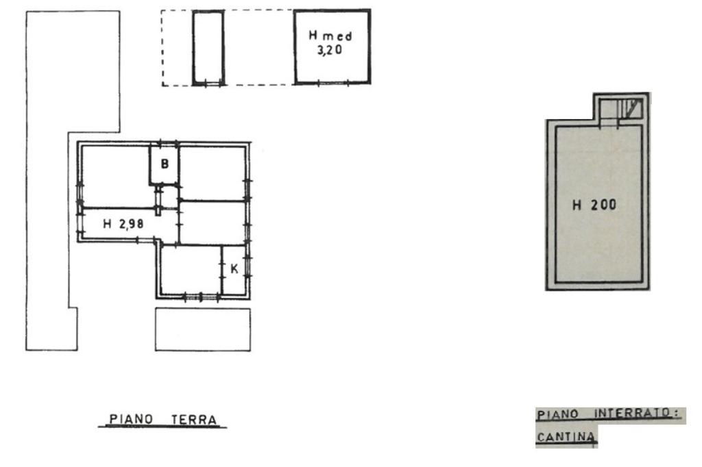
Nel comune di Vallefoglia, nella località centrale e ben servita di Montecchio proponiamo in vendita una porzione bassa di bifamiliare, ideale per chi cerca una soluzione abitativa con ampi spazi.

L'immobile, di 157 mq commerciali, si trova al piano terra con ingresso indipendente garantendo privacy e autonomia.

L’appartamento comprende quattro locali, un'ampia zona giorno con soggiorno e angolo cottura, tre camere da letto e un bagno, ben posizionato per servire comodamente tutte le stanze.

All'esterno, un giardino privato di circa 280 mq offre uno spazio verde per momenti di relax e attività all'aperto.

La proprietà include anche un garage e due posti auto esterni, assicurando ampio spazio per il parcheggio.

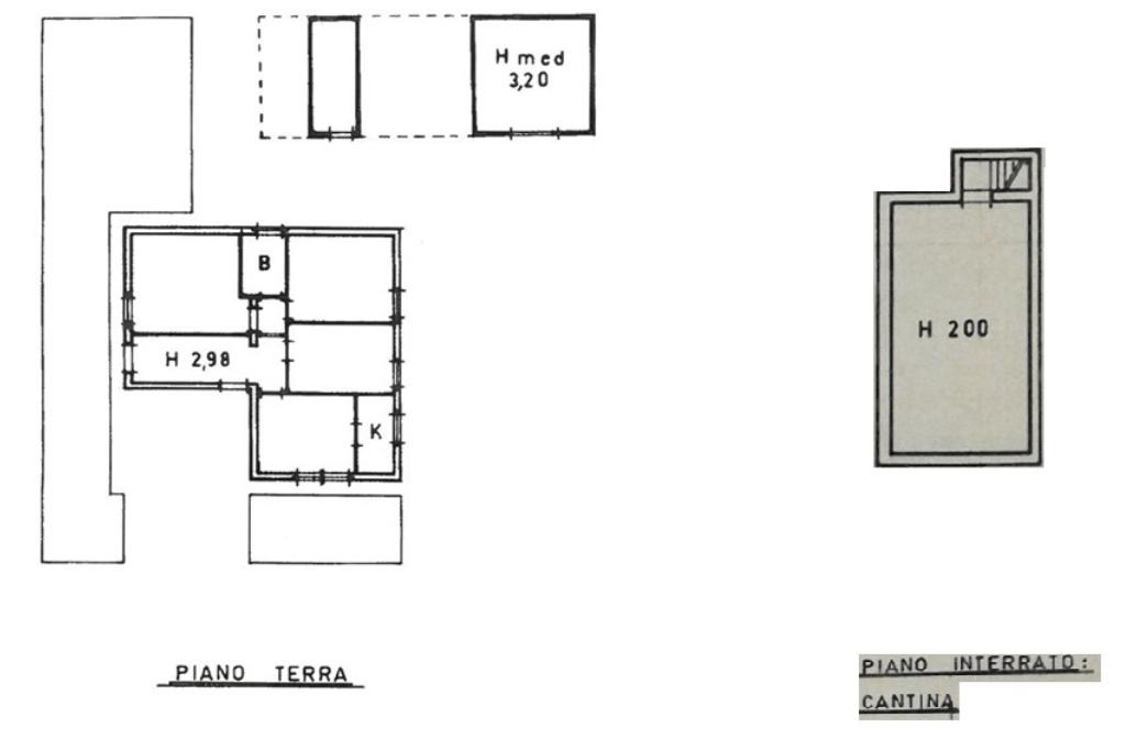
Completano l'offerta due cantine: una annessa al garage e una al piano seminterrato, ideali per lo stoccaggio e la conservazione.

Precisiamo che in caso di interesse è possibile acquistare anche l’appartamento di 180 mq commerciali posto al piano primo, ampliando così lo spazio abitativo, al prezzo complessivo di 250.000,00€.

Questa soluzione abitativa rappresenta un'opportunità per chi cerca spazio e funzionalità in un contesto servito e centrale.

Mostra tutto

Nelle vicinanze

Trasporto pubblico Trasporto pubblico
Trasporto pubblico
1,3 Km
Scuole Scuole
Istituto Comprensivo Giovanni Paolo II
590 m
Scuola Materna
1,6 Km
Infanzia comunale
1,8 Km
Scuola elementare Carlo Alberto dalla Chiesa
1,8 Km
Scuole
1,9 Km
Farmacia Farmacia
Farmacia
1,7 Km
Supermercati Supermercati
Simply
2,1 Km
CRAI
2,3 Km
Negozi Negozi
Ex Forno
1,3 Km
Pompiglio
1,6 Km
Punto e Virgola
1,7 Km
Diana Boutique
1,8 Km
Antichi Sapori
1,9 Km
Bar Bar
Morò
1,9 Km
La Bottega
2,0 Km
Zanzibar
2,1 Km
polvere di caffè
2,2 Km
Floridita
2,2 Km
Ristoranti Ristoranti
Pizzeria da Danny
1,6 Km
Ristoranti
1,6 Km
Osteria La Cueva
1,7 Km
La Vecchia Tradizione
2,2 Km
La Piazzetta
2,2 Km
Mostra tutto

Caratteristiche

Rif.:
61188897
Piano:
Basso di 4
Totale piani:
4
Box:
1
Posti auto:
2
Camere da letto:
3
Mostra tutto
Prezzo Prezzo
€ 135.000
Rata mutuo Rata mutuo
€ 641 / mese
Proponi il tuo prezzoProponi il tuo prezzo

Classe Energetica

G
G
G
G
G
G
G
G
G
EP globale non rinnovabile:
300.00 kW h/m² anno
EP globale rinnovabile:
30.00 kW h/m² anno
EP invernale del fabbricato:
EP estiva del fabbricato:
Anno di costruzione:
1963
Riscaldamento:
Autonomo
Tipo impianto:
A radiatori
Tipo alimentazione:
Metano

Ti interessa visionare l'immobile?

Fissa un appuntamento  Fissa un appuntamento

Richiedi informazioni

Clicca su Leggi per aprire l'informativa
* Questi campi sono obbligatori

Calcola il tuo mutuo

Semplice e senza impegno
Anticipo

( % )
Mutuo

( % )

pochi semplici passi

inserisci i tuoi dati
Questionario completato
Grazie per aver richiesto un appuntamento senza impegno con un nostro Consulente del Credito e Assicurativo.

Hai inserito correttamente tutti i dati necessari e a breve riceverai una e-mail con un link da convalidare per inviare i tuoi dati.
Affiliato
Studio San Giovanni Srl
Via Roma, 90 47842 San Giovanni In Marignano (RN)

Il nostro staff


  • Umberto Gusella
    Affiliato

  • Gioia Palazzi
    Coordinatrice

  • Miguel Angel Colletta
    Collaboratore

  • Obrad Duric
    Collaboratore

  • Lorenzo Fabbri
    Collaboratore

  • Marco Pontellini
    Affiliato

  • Giulia Sadikaj
    Collaboratrice
Via Roma, 90 47842 San Giovanni In Marignano (RN)
Zona: Morciano - San Giovanni in Marignano
Mostra su mappa
Orari: lun-ven 09:00 - 13:00; 15:00 - 19:30 sabato 09:00 - 13.00
Affiliato
Studio San Giovanni Srl
Via Roma, 90 47842 San Giovanni In Marignano (RN)

2026 Tecnocasa Franchising S.p.A. - P. IVA 08365160152 - Via Monte Bianco 60/A 20089 Rozzano (MI). Ogni agenzia ha un proprio titolare ed è autonoma. Privacy policy | Policy utilizzo | Cookie policy