Bilocale in vendita

Tavullia, via roma
€ 135.000
2 locali 2 locali
93 Mq 93 Mq
1 bagno 1 bagno

Bilocale in vendita

Tavullia, via roma

Descrizione annuncio

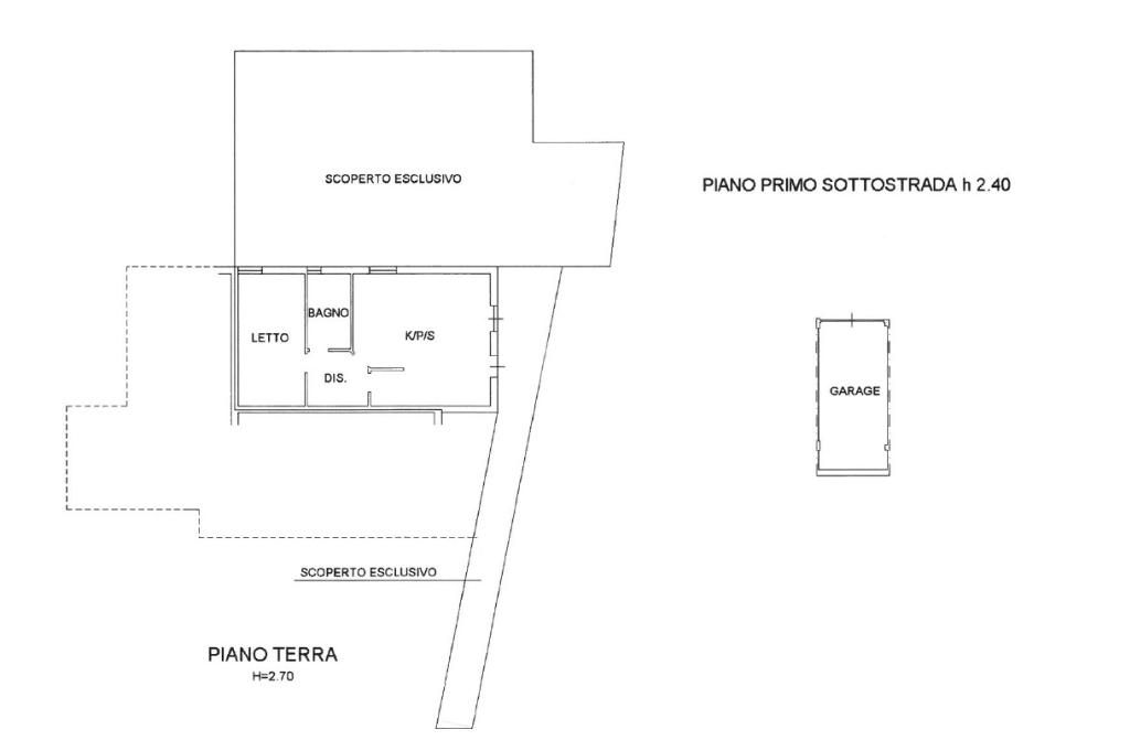
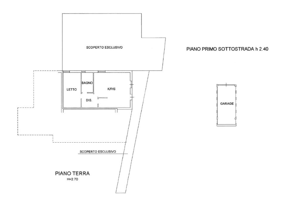
Nel comune di Tavullia, proponiamo in vendita un appartamento di circa 93 mq commerciali facente parte di una piccola palazzina costruita intorno al 2005, composta da sole cinque unità abitative.

Situato al piano terra, caratterizzato da un ingresso indipendente che garantisce privacy e comodità, l'immobile offre un ampio giardino di circa 166 mq, ideale per chi ama gli spazi esterni e desidera un'area verde privata.

All'interno, l'appartamento si compone di un luminoso soggiorno con cucina a vista, una camera da letto, disimpegno e bagno. Completa la proprietà un pratico garage, perfetto per il parcheggio o come spazio aggiuntivo per lo stoccaggio.

L'appartamento viene venduto parzialmente arredato, offrendo la possibilità di personalizzare gli ambienti secondo il proprio gusto. Questa soluzione rappresenta un ottimo investimento, sia per chi cerca una prima casa accogliente, sia per chi desidera un immobile da mettere a reddito.

Mostra tutto

Nelle vicinanze

Negozi Negozi
VR46 Store
340 m
Mostra tutto

Caratteristiche

Rif.:
61104813
Piano:
Terra con giardino di 2
Totale piani:
2
Box:
1
Camere da letto:
1
Arredamento:
Completo
Mostra tutto
Prezzo Prezzo
€ 135.000
Rata mutuo Rata mutuo
€ 622 / mese
Spese annue Spese annue
€ 0
Proponi il tuo prezzoProponi il tuo prezzo

Classe Energetica

E
E
E
E
E
E
E
E
E
EP globale non rinnovabile:
140.77 kW h/m² anno
EP globale rinnovabile:
4.57 kW h/m² anno
EP invernale del fabbricato:
EP estiva del fabbricato:
Anno di costruzione:
2005
Riscaldamento:
Autonomo
Tipo impianto:
A radiatori
Tipo alimentazione:
Metano

Ti interessa visionare l'immobile?

Fissa un appuntamento  Fissa un appuntamento

Richiedi informazioni

* Questi campi sono obbligatori

Calcola il tuo mutuo

Semplice e senza impegno
Anticipo

( % )
Mutuo

( % )

pochi semplici passi

inserisci i tuoi dati
Questionario completato
Grazie per aver richiesto un appuntamento senza impegno con un nostro Consulente del Credito e Assicurativo.

Hai inserito correttamente tutti i dati necessari e a breve riceverai una e-mail con un link da convalidare per inviare i tuoi dati.
Affiliato
Studio San Giovanni Srl
Via Roma, 90 47842 San Giovanni In Marignano (RN)

Il nostro staff


  • Umberto Gusella
    Affiliato

  • Gioia Palazzi
    Coordinatrice

  • Miguel Angel Colletta
    Collaboratore

  • Obrad Duric
    Collaboratore

  • Marco Lorusso
    Collaboratore

  • Marco Pontellini
    Affiliato

  • Giulia Sadikaj
    Collaboratrice
Via Roma, 90 47842 San Giovanni In Marignano (RN)
Zona: Morciano - San Giovanni in Marignano
Mostra su mappa
Orari: lun-ven 09:00 - 13:00; 15:00 - 19:30 sabato 09:00 - 13.00
Affiliato
Studio San Giovanni Srl
Via Roma, 90 47842 San Giovanni In Marignano (RN)

2025 Tecnocasa Franchising S.p.A. - P. IVA 08365160152 - Via Monte Bianco 60/A 20089 Rozzano (MI). Ogni agenzia ha un proprio titolare ed è autonoma. Privacy policy | Policy utilizzo | Cookie policy