Casa indipendente in vendita

Saludecio, Via molino venturi
€ 335.000
6 locali 6 locali
288 Mq 288 Mq
1 bagno 1 bagno

Casa indipendente in vendita

Saludecio, Via molino venturi

Descrizione annuncio

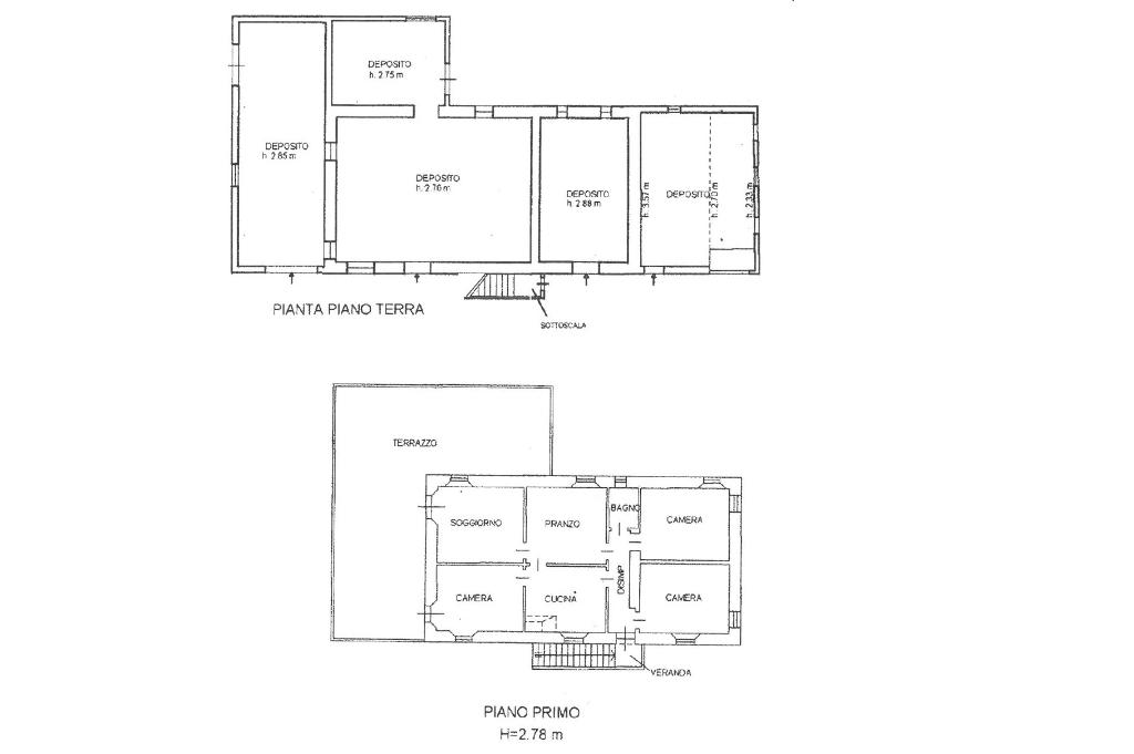
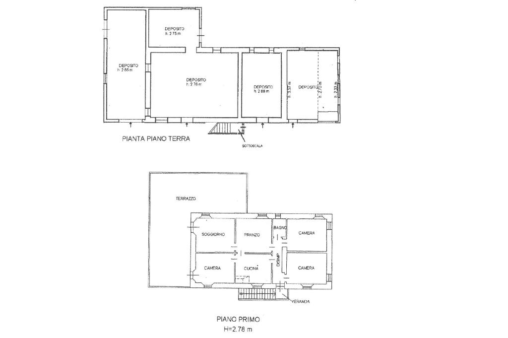
Saludecio: tipico casolare rustico delle campagne romagnole, assolutamente unico nel suo genere, immerso in un panorama da cartolina: al piano terra cinque ampi depositi/cantine per complessivi 128 mq commerciali perfetti per garage, laboratori o spazi ricettivi; al piano primo l’abitazione si sviluppa su sei locali, con tre camere da letto e tre grandi ambienti giorno ideali per accogliere ospiti o creare ambienti living su misura.

Sempre al piano primo è presente un ampio terrazzo ad angolo di circa 78 mq ideale per godersi momenti di relax all’aperto in completa riservatezza e ammirare la vista panoramica.

Presenti inoltre un giardino perimetrale di 2.100 mq e circa 99.000 mq di terreno agricolo.

Come visionabile dalle immagini fotografiche pubblicate, l’immobile è completamente da ristrutturare e rappresenta un’opportunità davvero unica per un progetto di charme: perfetto per agriturismo o B&B, con grandi potenzialità di personalizzazione e redditività.

Possibilità d’acquisto: soluzione completa casolare con giardino e terreni agricoli ad euro 335.000,00 €, solo il casolare con giardino di 2.100 mq ad euro €180.000 ,00 o soltanto i terreni agricoli ad euro €155.000,00.

La posizione dell’immobile garantisce tranquillità e privacy, pur essendo a breve distanza dai principali servizi e collegamenti. Si tratta di un'opportunità unica per chi cerca una dimora che unisce tradizione e potenzialità di personalizzazione.

Mostra tutto

Nelle vicinanze

Trasporto pubblico Trasporto pubblico
Trasporto pubblico
2,9 Km
Bar Bar
Il ritrovo del Vecchio Forno
2,9 Km
Ristoranti Ristoranti
Agriturismo Venerina
2,7 Km
Terrazza panoramica dell'Osteria dell'Accademia
2,8 Km
Osteria dell' Accademia
2,8 Km
Agrumaia
2,8 Km
Grotta dei Gridolfi
2,8 Km
Mostra tutto

Caratteristiche

Rif.:
61162434
Piano:
2 di 2 (Piano su più livelli)
Terrazzi:
1
Camere da letto:
3
Arredamento:
Assente
Condizionamento:
Assente
Mostra tutto
Prezzo Prezzo
€ 335.000
Rata mutuo Rata mutuo
€ 1.591 / mese
Spese annue Spese annue
€ 0
Proponi il tuo prezzoProponi il tuo prezzo

Classe Energetica

G
G
G
G
G
G
G
G
G
EP globale non rinnovabile:
436.41 kW h/m² anno
EP globale rinnovabile:
1.23 kW h/m² anno
EP invernale del fabbricato:
EP estiva del fabbricato:
Anno di costruzione:
1967
Riscaldamento:
Autonomo
Tipo impianto:
A radiatori
Tipo alimentazione:
Metano

Ti interessa visionare l'immobile?

Fissa un appuntamento  Fissa un appuntamento

Richiedi informazioni

Clicca su Leggi per aprire l'informativa
* Questi campi sono obbligatori

Calcola il tuo mutuo

Semplice e senza impegno
Anticipo

( % )
Mutuo

( % )

pochi semplici passi

inserisci i tuoi dati
Questionario completato
Grazie per aver richiesto un appuntamento senza impegno con un nostro Consulente del Credito e Assicurativo.

Hai inserito correttamente tutti i dati necessari e a breve riceverai una e-mail con un link da convalidare per inviare i tuoi dati.
Affiliato
Studio San Giovanni Srl
Via Roma, 90 47842 San Giovanni In Marignano (RN)

Il nostro staff


  • Umberto Gusella
    Affiliato

  • Gioia Palazzi
    Coordinatrice

  • Miguel Angel Colletta
    Collaboratore

  • Obrad Duric
    Collaboratore

  • Lorenzo Fabbri
    Collaboratore

  • Marco Pontellini
    Affiliato

  • Giulia Sadikaj
    Collaboratrice
Via Roma, 90 47842 San Giovanni In Marignano (RN)
Zona: Morciano - San Giovanni in Marignano
Mostra su mappa
Orari: lun-ven 09:00 - 13:00; 15:00 - 19:30 sabato 09:00 - 13.00
Affiliato
Studio San Giovanni Srl
Via Roma, 90 47842 San Giovanni In Marignano (RN)

2026 Tecnocasa Franchising S.p.A. - P. IVA 08365160152 - Via Monte Bianco 60/A 20089 Rozzano (MI). Ogni agenzia ha un proprio titolare ed è autonoma. Privacy policy | Policy utilizzo | Cookie policy