Trilocale in vendita

Morciano Di Romagna, Via roma
€ 230.000
3 locali 3 locali
123 Mq 123 Mq
2 bagni 2 bagni

Trilocale in vendita

Morciano Di Romagna, Via roma

Descrizione annuncio

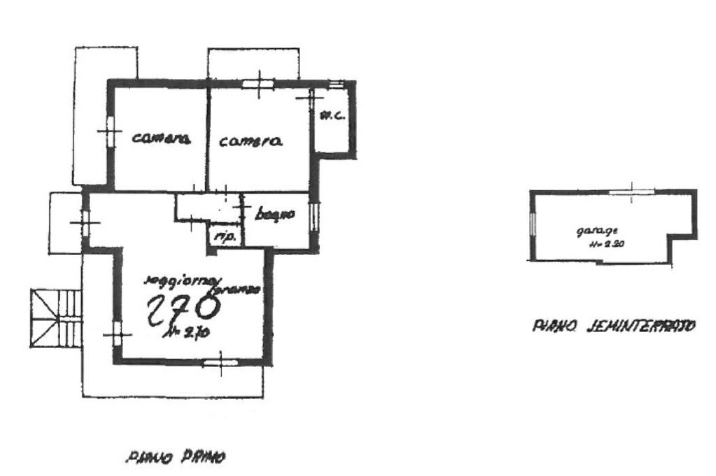
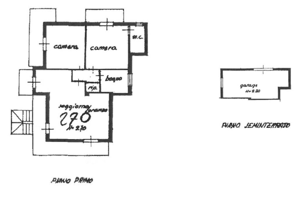
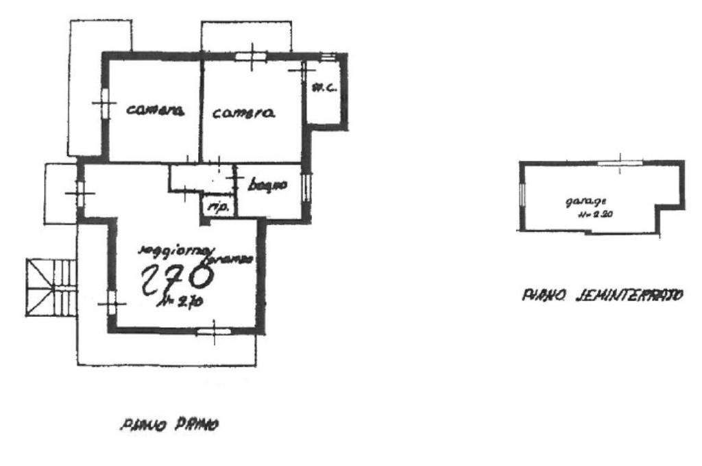
Nel cuore di Morciano di Romagna, proponiamo un appartamento di 123 mq situato al primo piano con ingresso indipendente. L'immobile, intorno al 1990, si trova in un contesto signorile e offre una posizione strategica per chi desidera vivere in una zona tranquilla, ben collegata e centrale.

La proprietà si sviluppa su un unico livello e vanta un'ampia metratura, ideale per chi cerca spazi comodi e funzionali.

Il soggiorno è arricchito da un camino, creando un'atmosfera accogliente e calda, la cucina, pratica e funzionale, è a contatto con la zona living pur rimanendo in una nicchia riservata. Dalla zona giorno luminosa e ariosa, si entra nel disimpegno dal quale si accede ad un piccolo e strategico ripostiglio e alla zona notte composta da due camere matrimoniali di cui una con bagno privato.

Sono inoltre presenti quattro balconi che offrono un comodo affaccio esterno accessibile da ogni ambiente della casa. Completano la proprietà un ampio garage al piano seminterrato.

L'arredo presente all’interno dell’immobile è compreso nel prezzo di vendita proposto.

Mostra tutto

Nelle vicinanze

Ricariche auto elettriche Ricariche auto elettriche
Falda dalla Chiesa | EnelX
1,2 Km
Scuole Scuole
Polo Scolastico Morciano Alcide De Gasperi
240 m
Farmacia Farmacia
Parafarmacia Valconca
60 m
Farmacia Al ponte
740 m
Ospedali Ospedali
Casa di Cura Montanari
50 m
Ospedali
720 m
Negozi Negozi
Pasticceria e pane
30 m
Bar Bar
Circolo Acli Sant'Andrea in Casale
1,3 Km
Ristoranti Ristoranti
Ristorante Pizzeria Il Borgo
350 m
Osteria Vecchia Romagna
360 m
Trattoria Adriana
370 m
Ristorantino Tuf Tuf
710 m
Capriccio Di Mare
1,1 Km
Mostra tutto

Caratteristiche

Rif.:
61126651
Piano:
1 di 2 (Piano basso)
Box:
1
Balconi:
4
Camere da letto:
2
Arredamento:
Parziale
Mostra tutto
Prezzo Prezzo
€ 230.000
Rata mutuo Rata mutuo
€ 1.060 / mese
Spese annue Spese annue
€ 500
Proponi il tuo prezzoProponi il tuo prezzo

Classe Energetica

D
D
D
D
D
D
D
D
D
EP globale non rinnovabile:
133.79 kW h/m² anno
EP globale rinnovabile:
5.13 kW h/m² anno
EP invernale del fabbricato:
EP estiva del fabbricato:
Anno di costruzione:
1990
Riscaldamento:
Autonomo
Tipo impianto:
A radiatori
Tipo alimentazione:
Metano

Ti interessa visionare l'immobile?

Fissa un appuntamento  Fissa un appuntamento

Richiedi informazioni

* Questi campi sono obbligatori

Calcola il tuo mutuo

Semplice e senza impegno
Anticipo

( % )
Mutuo

( % )

pochi semplici passi

inserisci i tuoi dati
Questionario completato
Grazie per aver richiesto un appuntamento senza impegno con un nostro Consulente del Credito e Assicurativo.

Hai inserito correttamente tutti i dati necessari e a breve riceverai una e-mail con un link da convalidare per inviare i tuoi dati.
Affiliato
Studio San Giovanni Srl
Via Roma, 90 47842 San Giovanni In Marignano (RN)

Il nostro staff


  • Umberto Gusella
    Affiliato

  • Gioia Palazzi
    Coordinatrice

  • Miguel Angel Colletta
    Collaboratore

  • Obrad Duric
    Collaboratore

  • Marco Lorusso
    Collaboratore

  • Marco Pontellini
    Affiliato

  • Giulia Sadikaj
    Collaboratrice
Via Roma, 90 47842 San Giovanni In Marignano (RN)
Zona: Morciano - San Giovanni in Marignano
Mostra su mappa
Orari: lun-ven 09:00 - 13:00; 15:00 - 19:30 sabato 09:00 - 13.00
Affiliato
Studio San Giovanni Srl
Via Roma, 90 47842 San Giovanni In Marignano (RN)

2025 Tecnocasa Franchising S.p.A. - P. IVA 08365160152 - Via Monte Bianco 60/A 20089 Rozzano (MI). Ogni agenzia ha un proprio titolare ed è autonoma. Privacy policy | Policy utilizzo | Cookie policy