Villa singola in vendita

Montelabbate, Via farneto
€ 400.000
7 locali 7 locali
479 Mq 479 Mq
5 bagni 5 bagni

Villa singola in vendita

Montelabbate, Via farneto

Descrizione annuncio

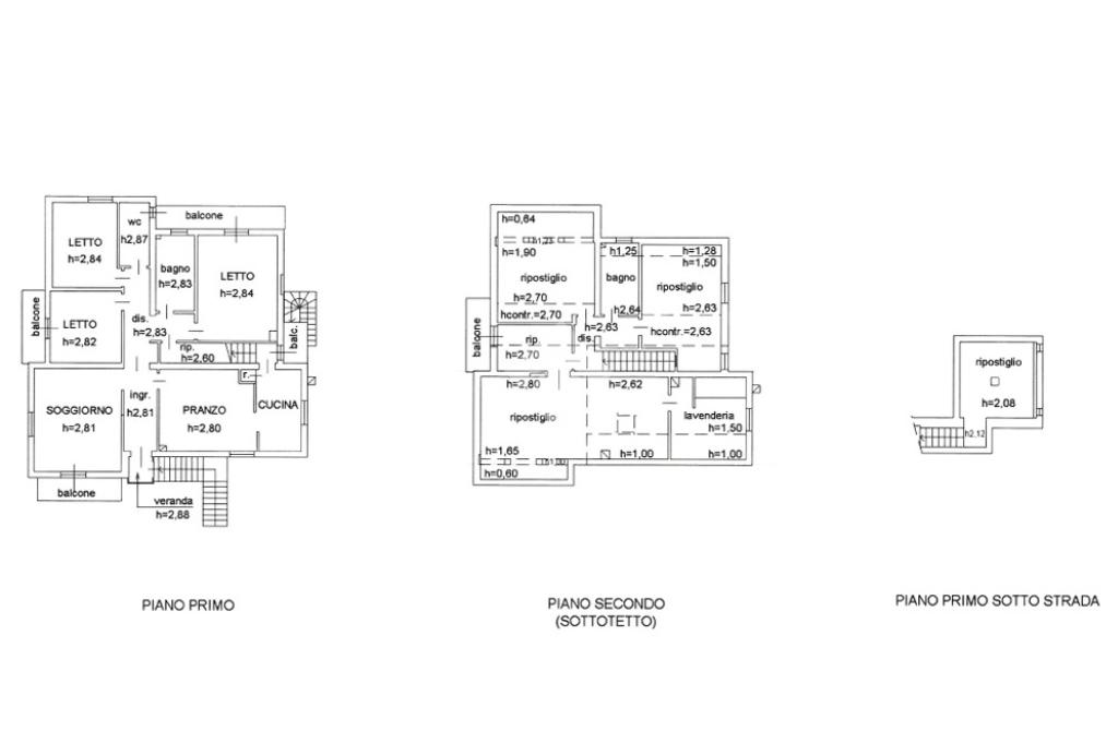
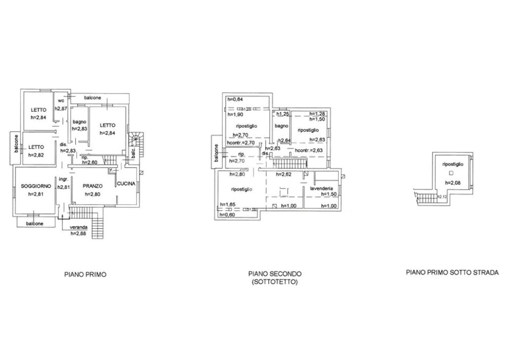
Nel comune di Montelabbate, proponiamo villa singola di tipo bifamiliare, costruita nel 1982, che si estende su una superficie commerciale di 479 mq.

Si tratta di un immobile dall’architettura semplice e regolare che permette uno sviluppo comodo degli ambienti interni. Le facciate dalla vivace tinteggiatura conferiscono armonia con il contesto circostante verdeggiante. La posizione piuttosto dominante, permette di godere di una vista aperta e ariosa sul paesaggio collinare dell’entroterra marchigiano.

La proprietà si sviluppa su due livelli oltre a mansarda e offre un ampio giardino di circa 3.000 mq, ideale per godersi momenti di svago all’aria aperta, per cene estive,, per attrezzare un’area ad “orto”, per far giocare i bambini in sicurezza o per i tuoi amici a quattro zampe.

All'interno della villa, al piano terra, si trova un appartamento ristrutturato intorno al 2000 composto da quattro locali, mentre al primo piano è presente un'unità abitativa con cinque locali. Entrambi gli appartamenti, ben rifiniti e abitabili da subito, dispongono di ingresso indipendente.

La mansarda, raggiungibile mediante scala interna, accatastata come ripostiglio, attualmente è stata sfruttata come bilocale, perfetto per ospiti o per un uso indipendente.

L’immobile è inoltre dotato di due camini, che aggiungono un tocco di calore e comfort agli ambienti, di cinque balconi che arricchiscono l'abitazione, offrendo spazi esterni ideali per momenti di relax e per godere della vista circostante.

Un ulteriore punto di forza di questa proprietà è la presenza di due garage e un deposito, di cui un garage e il deposito risultano situati fuori terra e in corpo staccato dal lotto principale, offrendo così ampie possibilità di utilizzo e comodità per il parcheggio e lo stoccaggio.

L’immobile è servito da caldaia a gasolio dotata di elettrovalvole, che consente di riscaldare autonomamente gli appartamenti al piano terra e al primo piano, garantendo efficienza energetica e gestione personalizzata del calore.

Il camino termoventilato aggiunge un tocco di calore e atmosfera agli ambienti, mentre il serbatoio di accumulo per l'acqua calda sanitaria assicura un approvvigionamento costante e affidabile.

Un elemento distintivo di questa proprietà è anche rivolto al sistema di raccolta dell'acqua piovana, che si avvale di cinque cisterne, un'opzione ecologica che consente di ridurre i consumi idrici e di gestire in modo sostenibile le risorse naturali.

La disposizione interna degli spazi è studiata per garantire comfort e funzionalità, rendendo questa villa una soluzione abitativa adatta a famiglie numerose o a chi desidera ampi spazi per ospitare amici e parenti.

La posizione strategica a Montelabbate offre un facile accesso ai servizi locali e alle principali vie di comunicazione.

Mostra tutto

Nelle vicinanze

Trasporto pubblico Trasporto pubblico
Trasporto pubblico
1,9 Km
Scuole Scuole
Scuola Materna
760 m
Scuola Primaria
780 m
Infanzia comunale
2,3 Km
Scuola elementare Carlo Alberto dalla Chiesa
2,3 Km
Scuola Media Gioachino Rossini
2,5 Km
Farmacia Farmacia
Farmacia
2,1 Km
Supermercati Supermercati
Simply
2,1 Km
CRAI
2,9 Km
Negozi Negozi
Punto e Virgola
2,0 Km
Diana Boutique
2,1 Km
Pompiglio
2,1 Km
Antichi Sapori
2,1 Km
Ex Forno
2,1 Km
Bar Bar
Bar
1,7 Km
La Bottega
2,0 Km
Morò
2,1 Km
polvere di caffè
2,5 Km
Floridita
2,8 Km
Ristoranti Ristoranti
Ristoranti
1,2 Km
Sottopasso
2,0 Km
La Vecchia Tradizione
2,6 Km
La Piazzetta
2,9 Km
Castello
2,9 Km
Mostra tutto

Caratteristiche

Rif.:
61182924
Piano:
2 di 3 (Piano su più livelli)
Box:
2
Balconi:
5
Camere da letto:
6
Arredamento:
Completo
Mostra tutto
Prezzo Prezzo
€ 400.000
Rata mutuo Rata mutuo
€ 1.900 / mese
Spese annue Spese annue
€ 0
Proponi il tuo prezzoProponi il tuo prezzo

Classe Energetica

G
G
G
G
G
G
G
G
G
EP globale non rinnovabile:
300.00 kW h/m² anno
EP globale rinnovabile:
30.00 kW h/m² anno
EP invernale del fabbricato:
EP estiva del fabbricato:
Anno di costruzione:
1982
Riscaldamento:
Autonomo
Tipo impianto:
A radiatori
Tipo alimentazione:
Metano

Ti interessa visionare l'immobile?

Fissa un appuntamento  Fissa un appuntamento

Richiedi informazioni

Clicca su Leggi per aprire l'informativa
* Questi campi sono obbligatori

Calcola il tuo mutuo

Semplice e senza impegno
Anticipo

( % )
Mutuo

( % )

pochi semplici passi

inserisci i tuoi dati
Questionario completato
Grazie per aver richiesto un appuntamento senza impegno con un nostro Consulente del Credito e Assicurativo.

Hai inserito correttamente tutti i dati necessari e a breve riceverai una e-mail con un link da convalidare per inviare i tuoi dati.
Affiliato
Studio San Giovanni Srl
Via Roma, 90 47842 San Giovanni In Marignano (RN)

Il nostro staff


  • Umberto Gusella
    Affiliato

  • Gioia Palazzi
    Coordinatrice

  • Miguel Angel Colletta
    Collaboratore

  • Obrad Duric
    Collaboratore

  • Lorenzo Fabbri
    Collaboratore

  • Marco Pontellini
    Affiliato

  • Giulia Sadikaj
    Collaboratrice
Via Roma, 90 47842 San Giovanni In Marignano (RN)
Zona: Morciano - San Giovanni in Marignano
Mostra su mappa
Orari: lun-ven 09:00 - 13:00; 15:00 - 19:30 sabato 09:00 - 13.00
Affiliato
Studio San Giovanni Srl
Via Roma, 90 47842 San Giovanni In Marignano (RN)

2026 Tecnocasa Franchising S.p.A. - P. IVA 08365160152 - Via Monte Bianco 60/A 20089 Rozzano (MI). Ogni agenzia ha un proprio titolare ed è autonoma. Privacy policy | Policy utilizzo | Cookie policy