Villa a schiera in vendita

Montelabbate, Via Apsella - Apsella
€ 280.000
Prezzo aggiornato
5 locali 5 locali
224 Mq 224 Mq
4 bagni 4 bagni

Villa a schiera in vendita

Montelabbate, Via Apsella - Apsella

Descrizione annuncio

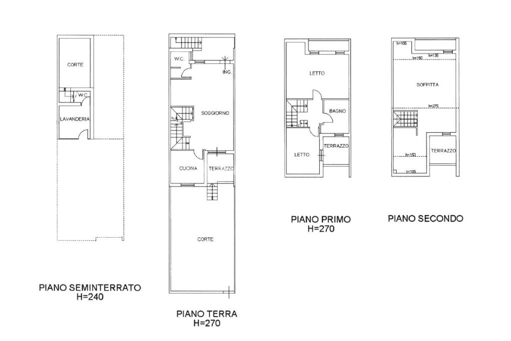
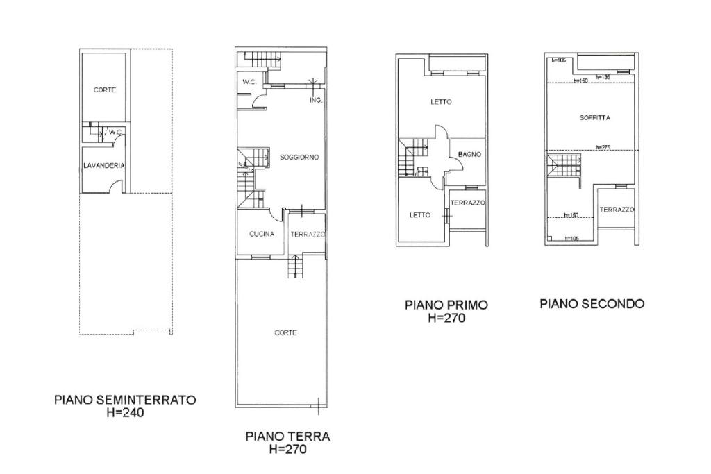
Nel comune di Montelabbate, nella tranquilla località di Apsella, è disponibile una spaziosa villetta a schiera centrale. Con una superficie di 224 mq commerciali questa proprietà si sviluppa su quattro livelli, offrendo ampi spazi ben distribuiti

La villetta, dotata di ingresso indipendente, al piano terra dispone di cucina abitabile, ampia sala, antibagno e bagno, al piano primo troviamo due comode camere entrambe servite da balcone, disimpegno e bagno.

Al piano mansardato presenti due ulteriori ambienti, disimpegno, bagno mentre al piano seminterrato troviamo una comoda area taverna servita da bagno, lavanderia e ampio garage ideale per il parcheggio e lo stoccaggio.

Il giardinetto privato che invita all’ingresso della casa aggiunge un tocco di verde e tranquillità.

Costruita nel 1991, l’abitazione è dotata di aria condizionata per il massimo comfort. L’arredo è incluso nel prezzo di vendita offrendo un valore aggiunto e permette di trasferirsi nella nuova casa senza pensieri.

Chiamaci al n. 0541.827022 digita il tasto due e mettiti subito in contatto con i notri collaboratori per fissare un sopralluogo gratuito e senza impegno.

Mostra tutto

Nelle vicinanze

Trasporto pubblico Trasporto pubblico
Trasporto pubblico
1,4 Km
Scuole Scuole
Scuola Primaria
150 m
Scuola Materna
150 m
Infanzia comunale
1,7 Km
Scuola elementare Carlo Alberto dalla Chiesa
1,7 Km
Istituto Comprensivo Giovanni Paolo II
2,1 Km
Farmacia Farmacia
Farmacia
1,4 Km
Supermercati Supermercati
Simply
1,6 Km
CRAI
2,4 Km
Negozi Negozi
Ex Forno
1,4 Km
Punto e Virgola
1,4 Km
Pompiglio
1,4 Km
Diana Boutique
1,5 Km
Antichi Sapori
1,6 Km
Bar Bar
La Bottega
1,5 Km
Morò
1,6 Km
Bar
1,6 Km
polvere di caffè
2,0 Km
Zanzibar
2,3 Km
Ristoranti Ristoranti
Ristoranti
320 m
Sottopasso
1,6 Km
La Vecchia Tradizione
2,1 Km
Osteria La Cueva
2,2 Km
La Piazzetta
2,3 Km
Mostra tutto

Caratteristiche

Rif.:
61141252
Piano:
2 di 2 (Piano su più livelli)
Box:
1
Balconi:
1
Terrazzi:
2
Camere da letto:
3
Mostra tutto
Prezzo Prezzo
€ 280.000
Rata mutuo Rata mutuo
€ 1.308 / mese
Spese annue Spese annue
€ 0
Proponi il tuo prezzoProponi il tuo prezzo

Classe Energetica

G
G
G
G
G
G
G
G
G
EP globale non rinnovabile:
300.00 kW h/m² anno
EP globale rinnovabile:
30.00 kW h/m² anno
EP invernale del fabbricato:
EP estiva del fabbricato:
Anno di costruzione:
1991
Riscaldamento:
Autonomo
Tipo impianto:
A radiatori
Tipo alimentazione:
Metano

Prezzo ridotto di €1 (7%%)

Ti interessa visionare l'immobile?

Fissa un appuntamento  Fissa un appuntamento

Richiedi informazioni

Clicca su Leggi per aprire l'informativa
* Questi campi sono obbligatori

Calcola il tuo mutuo

Semplice e senza impegno
Anticipo

( % )
Mutuo

( % )

pochi semplici passi

inserisci i tuoi dati
Questionario completato
Grazie per aver richiesto un appuntamento senza impegno con un nostro Consulente del Credito e Assicurativo.

Hai inserito correttamente tutti i dati necessari e a breve riceverai una e-mail con un link da convalidare per inviare i tuoi dati.
Affiliato
Studio San Giovanni Srl
Via Roma, 90 47842 San Giovanni In Marignano (RN)

Il nostro staff


  • Umberto Gusella
    Affiliato

  • Gioia Palazzi
    Coordinatrice

  • Miguel Angel Colletta
    Collaboratore

  • Obrad Duric
    Collaboratore

  • Lorenzo Fabbri
    Collaboratore

  • Marco Pontellini
    Affiliato

  • Giulia Sadikaj
    Collaboratrice
Via Roma, 90 47842 San Giovanni In Marignano (RN)
Zona: Morciano - San Giovanni in Marignano
Mostra su mappa
Orari: lun-ven 09:00 - 13:00; 15:00 - 19:30 sabato 09:00 - 13.00
Affiliato
Studio San Giovanni Srl
Via Roma, 90 47842 San Giovanni In Marignano (RN)

2026 Tecnocasa Franchising S.p.A. - P. IVA 08365160152 - Via Monte Bianco 60/A 20089 Rozzano (MI). Ogni agenzia ha un proprio titolare ed è autonoma. Privacy policy | Policy utilizzo | Cookie policy